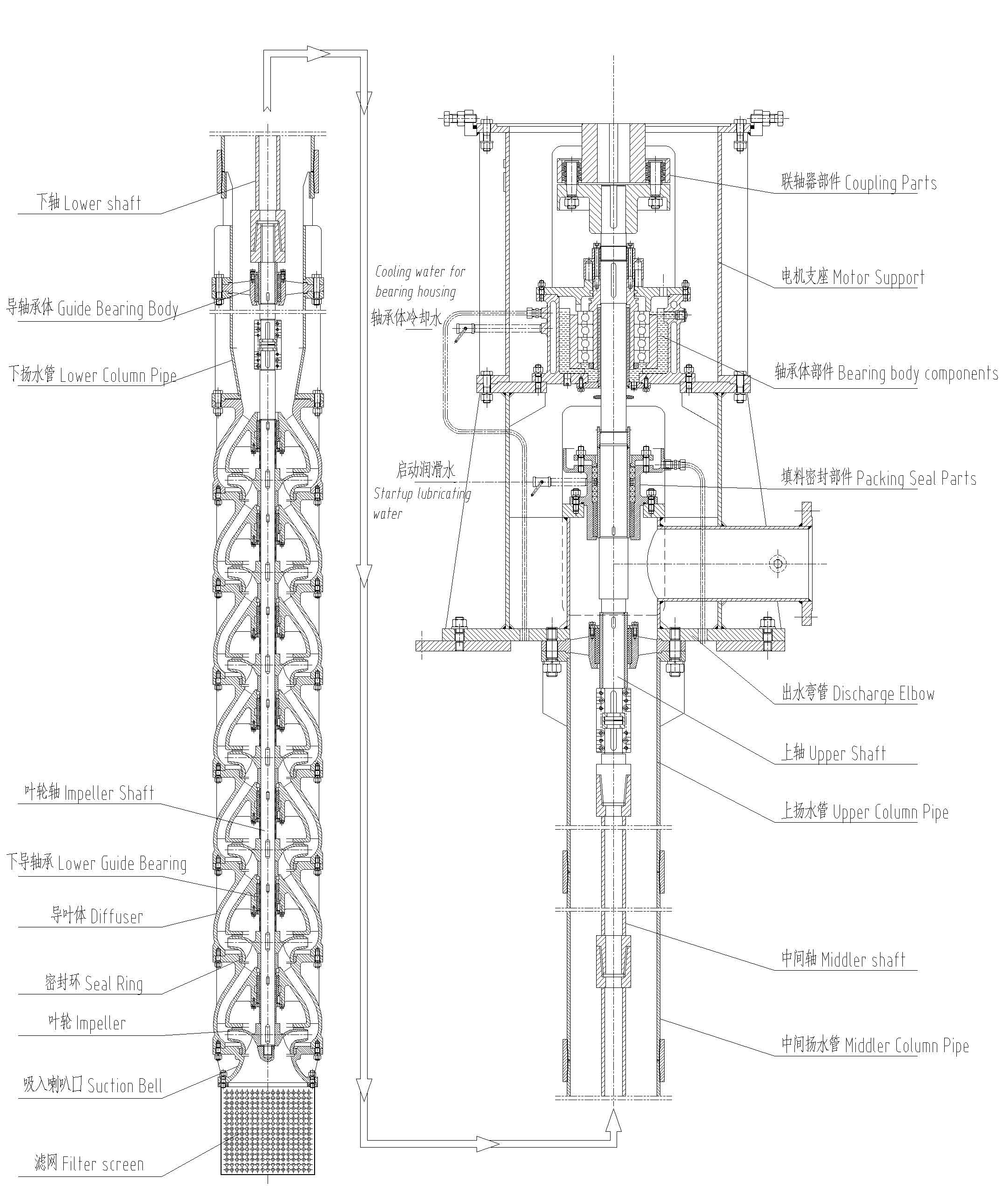
1、概述 LVG系列超长立式长轴泵系单吸、双吸、单级或者多级立式导叶式或者节段式水泵。该系列泵是在吸收了国内外立式长轴泵设计和制造先进经验,并结合国内市场需求研制的全新结构的超长长轴泵系列产品,具有运行可靠、结构先进的特点,其主要适用于油井、矿山、海洋平台等行业输送低于200℃的地下水、海水等介质。 型号意义: 200LVG-200-X 200 — 泵的出口直径为200mm LVG — 超长立式长轴泵 200 — 叶轮的设计点流量为200m³/h X —泵的液下深度(X在40-400之间) 水泵运行时必须保证一定的淹没深度,其最小淹没深度值参见泵的安形安装尺寸图。井应正直。 3、结构说明 LVG系列超长立式长轴泵的结构图如图1所示。 <1>驱动类型 LVG系列超长立式长轴泵有四种驱动形式:ⅰ)直接由普通立式电机驱动;ⅱ)直接由立式空心轴电机驱动;ⅲ)配用柴油机或汽轮机通过直角齿轮箱变速驱动;ⅳ)配用卧式电机通过直角齿轮箱变速驱动。 <2>结构 该泵设备主要由泵体部件、扬水管部件、泵座部件三部分组成。其中前两个部分位于井下,泵座部分位于井上。 LVG系列超长立式长轴泵结构图 ⅰ) 泵体部件 泵体部件主要包括:滤网、叶轮、密封环、轴套、吸入喇叭口、导叶体、导轴承、叶轮轴等零件。 吸入喇叭口与导叶体、导叶体之间均采用法兰联接,叶轮采用轴套固定。 ⅱ) 扬水管部件 扬水管部件由扬水管、传动轴、导轴承体、导轴承及联轴器等零件组成。 扬水管之间采用螺纹联接。 ⅲ) 泵座部件 泵座部件主要包括出水弯管及填料装置,当采用普通立式电机驱动时,则还配有电机支座、推力轴承部件、防反转机构及泵、电机联轴器等零部件。 整个泵座部件用多个地脚螺栓固定于基础上。 4、参数表 型 号 流量Q 扬程H 转速n 效率 液深 m3/h L/S m r/min % m 150LVG-120 120 33.3 60-450 1480 72 40~400 200LVG-200 200 55.6 60-450 1480 75 40~400 200LVG-300 300 83.3 60-450 1480 75 40~400 250LVG-500 500 138.9 60-450 1480 75 40~400 300LVG-700 700 194.4 60-450 1480 75 40~400 350LVG-900 900 250.0 60-450 1480 76 40~400 400LVG-1200 1200 333.3 60-450 1480 76 40~400 450LVG-1500 1500 416.7 60-450 980 78 40~400 注:以上表格内扬程60米对应液下深度40米,扬程450米对应液下深度400米,用户可根据具体液深更改扬程参数,详细信息请咨询我司。 安装之前,务必对泵设备进行检查。 l 清点零部件,并检查是否遗失或损坏。 l 检查所有已装配的紧固件的紧固度是否合适。 l 盘动泵轴,其应该能顺畅地转动。 安装步骤: <1>装好滤网。 <2>用联轴器将下传动轴与叶轮轴联接起来。 <3>将下扬水管与最上部的导流壳用螺栓联好。 <4>将上述联接好的部件吊起后缓慢地放入井中,然后利用法兰的凸缘支撑固定在井台的专用夹具工装上。 <5>用专用工装把螺纹套及传动轴联接好和把螺纹套及扬水管联接好,逐根配套下放深井中。 <6>重复步骤4与步骤5,直至装完所有的传动轴与扬水管。 <7>取出出水弯管填料腔中的填料,吊起出水弯管,使上轴穿过填料腔孔,联接好上扬水管与出水弯管,然后缓慢放下,直到出水弯管落在基础上。 <8>安装好填料,压紧填料压盖。 <9>根据驱动方式不同,以下步骤分三种情况: ⅰ) 普通立式电机驱动 先将电机支座安装在出水弯管上部,再将推力轴承体用螺栓固定在电机支座上,在推力轴承体中放入推力轴承,为上轴装上键后,套入轴承衬套,然后安装防反转棘轮,最后装入泵联轴器,用小圆螺母(调节螺母)压紧。 ⅱ) 空心轴电机驱动 取下电机上端的防水罩,吊起电动机,使上轴穿过电机空心转子,让电动机安装在出水弯管上,装上调节螺母。 ⅲ) 通过直角齿轮箱驱动 安装方法同空心轴电机驱动类似。 <10>通过调整调节螺母,调节轴向间隙。 1. 轴向间隙的调整 水泵试车前,必须调整导流壳与叶轮之间的轴向间隙,使叶轮在运转时既不与导流壳磨擦又能达到性能要求。本泵采用调整螺母来调节轴向间隙,其主要步骤如下: 对于刚装好的泵,往往不能转动,通过调整调节螺母,使轴刚好能转动,将此时螺母的位置作为起始调节点。 轴向间隙的调节量为该泵总窜动量的一半,通常的总窜动量为6-8mm,即一般的调节量为3-4mm。将调节量除以调节螺母的牙距即为调节螺母转动的圈数。例如总窜动量为6mm的泵,调节螺母的牙距为1.5mm,则应将调节螺母从起始调节点转动两圈。调节完毕后,拧入第二个小圆螺母,或者插入止退销,进行锁紧。 <2>按上述方法调节后,启动水泵,观察电流表是否超过电动机电流额定数值。如果电机工作电流过大(额定电流的110%以上),则表示间隙太小,应停车再调大一点。对于新装的水泵,要求运行20分钟后,再调节一次。对含有少量泥沙的深井,应增加轴向间隙,本泵建议比原调节位置再多旋(1/2~1)圈,以降低叶轮在运转中磨损。 2. 预润滑 与传统的深井长轴泵不同,超长长轴泵无需预润滑,盘车活即可启机。 3. 启动前检查 超长长轴泵启动前至少应检查以下项目:基础安装、轴向间隙调整、填料压盖预紧度、电动机润滑油、电气装置以及水泵转子的转动灵活程度。当检查的项目符合要求后方可启动超长长轴泵。 本泵建议采用变频启动。启动时须关闭阀门,启动后慢慢打开阀门直到满足参数要求,在开阀过程中应留意电流的数值,防止电流过大对电机造成伤害,甚至损坏。超长长轴泵使用后,要求经常测量深井的静、动水位。每次启动必须盘车。电机停止时,要检查其润滑油面的高度,如不足必须加足油量。 故障种类 发生原因 消除方法 电机过载 (电流过大) 1. 叶轮与密封环产生磨擦 2. 泵内有异物 3. 轴承损坏 4. 填料压得过紧 5. 转速过高 6. 超过运行范围,大流量运行 7. 供电线一相断路,单相运行 1. 调整间隙 2. 清除异物 3. 更换轴承 4. 适当放松填料 5. 检查电压、频率、电机,并作调整 6. 关小出口闸阀 7. 专业人员检查、修理 流量降低 1. 叶轮密封环磨损过大 2. 井内动水位下降较深 3. 间隙调整不对造成叶轮磨损 4. 进水滤网被异物堵塞 5. 联接导流壳的螺纹松动或泄漏 6. 扬水管接口处漏水 7. 转向不对 8. 转速过低 1. 更换叶轮密封环 2. 增加叶轮级数或更换成扬程较高的泵体 3. 掉换叶轮 4. 清理滤水网 5. 拧紧螺纹 6. 检查扬水管部分有否漏水痕迹,支架端面是否平整 7. 校正转向 8. 检查电源,使其达到要求 不上水 1. 动水位低于吸入喇叭口 2. 传动轴断裂。 3. 扬水管联接部分裂开大量漏水 1. 增加需要数量的扬水管和轴,若因此流量减少,在动力允许条件下,增加叶轮级数或更换泵体 2. 研究断轴原因,更换传动轴 3. 研究裂开原因消除其缺陷 激烈振动 1. 安装试车过程,在未出水前产生振动 2. 淹没深度不够,发生汽蚀 3. 传动轴不同心或弯曲。 4. 叶轮不平衡 5. 基础螺栓松动 6. 轴承损坏 7. 输出管路的影响 1. 变频调速避开振动点 2. 提高吸入水位或关小出口闸阀 3. 校正或更换传动轴 4. 叶轮校正静平衡 5. 拧紧地脚螺栓 6. 更换轴承 7. 检查并排除影响 填料函处 泄漏过多 1. 填料已磨损 2. 填料过硬或不够紧密 3. 轴摆动和弯曲 4. 因含砂量高,轴或填料过度磨损 1. 增放填料 2. 换填料或补加一圈填料,或压紧填料压盖 3. 校正轴 4. 换轴或换填料并检查井内含砂量 填料压盖 过热 1. 填料被压过紧或轴弯曲 2. 填料函内流水不足或不流水 1. 检查填料压紧和安装情况 2. 松驰填料函填料使水流出 不能止逆 1. 止逆销孔内不清洁 2. 防反转棘轮已磨损 1. 清洗止逆销及止逆孔 2. 更换防反转棘轮 9、维护保养 1. 泵的拆卸 泵的拆卸大体上与安装过程相反。对于所有接触面,传动轴与扬水管的端面及止口,螺纹外表均应用煤油清洗,并涂以防锈油。 2. 泵体的拆卸 <1>与安装方式安装步骤4和安装步骤5相反,逐级提升并松开泵轴及扬水管。 <2>最后松开下导流壳; <3>从叶轮的进水口用冲筒撞击锥套的小头,使锥套与叶轮松开,取出锥套和叶轮; <4>拆除下一级中导流壳; <5>重复步骤2、3,拆卸所有导流壳、叶轮和锥套; 泵体分解完毕后,应检查零件有否磨损,若磨损严重应予掉换。 4. 维修 <1>泵体拆卸完后,检查叶轮磨损情况,若磨损严重应更换;若只是轻度磨损,可将其接触面打磨后继续使用。检查叶轮密封环,根据磨损情况,考虑是否更换。 <2>若导流壳与叶轮配合的锥面存在磨损,应重新校正,确保与叶轮的配合面保持一致。另外,对导流壳的过流通道进行必要的检查和清洗。 <3>若叶轮轴有镀铬位置,应进行检查,若已经剥落,应进行更换。 <4>检查导流壳内的导轴承,根据磨损情况,考虑是否更换。 <5>检查锥套是否损坏,若损坏则应更换。 5. 周期性维护 水泵运行的检修周期为一年。水泵运行一年后,若是机组运行仍然平稳,没有出现大的振动,安培表的读数也正常,那么检修周期可适当延长,但不得超过五年。如果运行不超过一年,但机组出现较激烈的振动,应该考虑是否是导轴承过早地损坏,此时应适时停机检查,更换损坏件。定期检查井中的含砂量,过高则应对井进行清洗。 典型应用场景 1.工业流程: 用于输送清水、冷却水、工艺液体、化学品、石化产品等,尤其适用于高扬程的应用。 2.电力行业: 用于电厂循环冷却水、热水输送、锅炉给水和循环水系统、粉煤灰水及煤泥浆抽排、水电站中的涡轮发电机组等。 3.冶金与矿山:氧化铁皮水与浊环水输送、高温废渣液与熔融介质冷却液循环、粉尘环境下的密闭输送系统、冲渣系统与渣浆回水提升、酸性废液(矿井水)与腐蚀性介质输送、冶金设备循环冷却水系统、深井矿排水系统、高浓度矿浆与尾矿输送、尾矿库回水、应急排涝与防洪。 4.市政供水: 深井提水、雨水泵站与防洪排涝工程、垃圾渗滤液输送、污水泵站提升、供水系统等。 5.污水处理: 用于污水提升、污水处理、污水排放等领域。 6.船舶工业:用于船舶冷却系统、排水系统和供水系统、压载舱注排水。 7.化工制药:硫酸、盐酸、碱液、有机溶剂的循环与输送。 8.环保领域:污水处理、污泥脱水、酸碱中和垃圾渗滤液输送。 9.能源领域: 油气平台液体输送、地热能开发中的高温液体提升、 10.农业领域:深井提水与地下水灌溉 11.海洋平台:海洋石油平台消防系统、海水提升系统、海水淡化系统。2、使用条件

5、安装6、运行前准备
7、启动与运行
8、常见故障及排除方法

分布式能源系统冷却循环、石油储罐底部残液抽排与回注。
、大型灌区与跨流域调水工程、旱季低水位持续供水、含沙河水与渠水输送、防洪排涝与应急排水。
-
01 技术研发
与时俱进,不断供应市场需求产品给客户公司拥有产品研发中心和CAD/CAE设计系统,具有水泵、化工、输煤机械、预报警系统自主开发、设计、研制能力。,高级工程师18人,中级职称40人,拥有118多名工程技术人员2001年与江苏理工大学、华中科技大学等高校建产学研关系,2003年,与中南大学粉冶所共同研制新型的耐磨耐腐材料。
-
-
-
02 加工能力
每一道工序都是匠人们的精雕细琢有立式车床、落地镗床、磨床、数控龙门镗铣床等各类大型设备。可车削旋转直径4500mm以内各类零件和加工3000mm以内的长轴,并可进行3500mm以内长度的深孔加工。可平衡1.6米的旋转零件,被平衡件最重可达5000公斤,为水泵的安全、平稳运行提供了必要的保障。
-
03 严选优材
重视每一个零部件的质量特设零部件入厂检测部门,全权监控原材品质,依据订单需求,严格挑选符合要求的供应商产品,所有零配件均经过专业检测人员及设备的入厂检测,始终坚持质量是根本的原则,十分重视对质量的严格要求。
-
-
-
04 标准厂房
大型现代化厂房轻松完成客户订单需求2001年6月,公司开始实施新的整合计划,现在已经完成湘阴制造基地一期工程。一期工程新厂房占地100亩,钢结构标准厂房建筑面积14000平方米,加工车间建筑面积约3000平方米,总装车间面积为2000平方米,保质保量完成客户订单需求。
-
05 全面检验
水泵品质担当,杜绝次品出厂质量管理科对各生产工序进行全过程监控,使操作人员严格按工序流程和要求进行,并记录各工序质量情况,以便对产品质量进行跟踪。能按GB3216-89要求进行型式试验和出厂试验,测试精度达到B级水平。通过了ISO9001:2008国际质量、环境管理体系和职业健康安全管理体系认证。
-
- 湖南立佳机械制造有限公司
- 热线一:151-1135-1988 热线二:0731-8481-0558
- 热线三:185-0731-2158 售后客服:0731-8419-9558
- 传真:0731-8558-0727 邮箱:sale@ljpump.net
- 地址:湖南长沙市芙蓉中路三段496号





移动官网
官方微信
工商信息